|
Упражнение 3. Использование элементов "Выдавливания" и "Вращения" для создания детали |
|
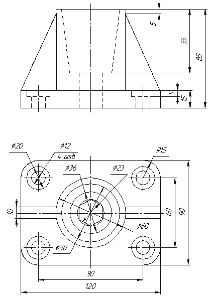
По двум видам построить деталь.

1.Создать файл: Деталь...m3d

2. Построение основания детали
2.1.Построить призму 120,90,15
Выбираем Ориентацию Изометрия YZX.
Выбираем плоскость основания XY. Создаем Эскиз. Используя панель Геометрия строим прямоугольник по центру и вершине.
|
|
Плоскость XY при создании Ассоциативных видов будет фронтальной плоскостью. В начертательной геометрии по координатам X и Y строится проекция на горизонтальную плоскость. |
Высота 90 ширина 120. Закрыть Эскиз.

2.2.Операция Выдавливание позволяет задать высоту основания 15 мм.


2.2.Скруглить углы основания радиусом 15мм.
2.3. Построить сквозные отверстия D12мм и D20мм на глубину 5мм.
Расстояние между осями отверстий по оси Х = 90мм по оси У = 60мм
Мышкой указываем на верхнюю грань призмы, включаем режим редактирования эскиза.
С помощью вспомогательных линий можно обозначить центры нахождения отверстий.
Строим окружность D20мм. Эскиз закрыть.

Команда Вырезать элемент выдавливанием на глубину 5мм.
Мышкой указываем на верхнюю грань призмы, включаем режим редактирования эскиза.
Строим окружности D12мм примерно в те же центры, проверяем размеры.
Вырезаем элемент выдавливанием на глубину «через все».
3. Построить цилиндр на основании D60мм высотой 70мм
Выбираем плоскость XY. Строим окружность R30мм. Приклеить выдавливанием (расстояние задаем с учетом толщины основания)

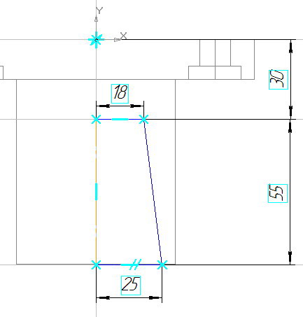
4. Построить конусное отверстие глубина 55мм, DВ = 50, DН =36
Выбираем плоскость ZХ. Новый эскиз. Строим контур, который при вращении вокруг оси Z создаст необходимое тело вращения.
Внимание тип линии отрезка, вокруг которого вращается контур – осевая.

Команда Вырезать вращением.

5.Построить шестигранное отверстие диаметр описанной окружности равен 23 мм.
Мышкой указываем на основание конуса D36мм, включаем режим редактирования эскиза. Панель Геометрия команда Многоугольник.
Команда Вырезать элемент выдавливанием на глубину «через все».
6. Построить ребра жесткости.
Высота ребра от платформы 65мм.
Выбрать Плоскость ZX . Построить эскиз ребра, используя вспомогательные прямые и привязки.

Используем команду Ребро жесткости на панели Редактирование детали.

7. Вырезать четверть.
Устанавливаем вид Спереди. Создаем новый эскиз. Строим проекцию секущей плоскости.
Команда Сечение по эскизу.

8. Для создания ассоциативного чертежа, чтобы автоматически заполнялась Основная надпись, необходимо задать Свойства детали.
В Дереве построения правой кнопкой мыши вызвать контекстное меню.

Ответ.

В результате упражнения получается модель
![]()
|
|